Zum Inhalt springen
Menü
Menü
Immobilienangebot
Verwaltung
Vermarktung
Bewerten
Formulare
Über uns
Karriere
Menü
Immobilienangebot
Verwaltung
Vermarktung
Bewerten
Formulare
Über uns
Karriere
Objekttyp:
Haus
Immobilensuche
4 Objekte
Alle Angebote
Kauf
Miete
Objekttypen
Büro
Gewerbefläche
Grundstück
Haus
Ladenlokal
Parkplatz
Wohnung
Standorte
Oberland
Schaan
Triesen
Vaduz
Unterland
Eschen
Gamprin-Bendern
Mauren
Schaanwald
Schellenberg
Schweiz
Sennwald
Buchs SG
Zurücksetzen
Neu
Miete
Haus
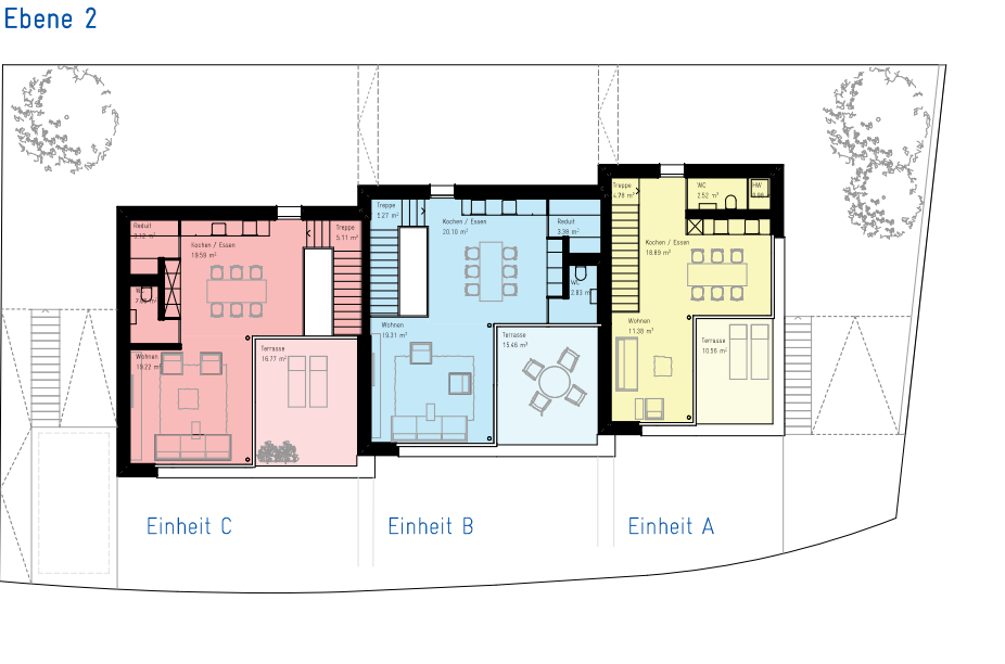
Erstbezug Reihenhaus (B) in Gamprin
Neu
Miete
Haus
Erstbezug Reihenhaus (A) in Gamprin
Kauf
Grundstück
Haus
Villa in Vaduz
Verkauft
Kauf
Grundstück
Haus
Einfamilienhaus auf grosszügigem Grundstück